Villa Riley Alella

Private house, Alella

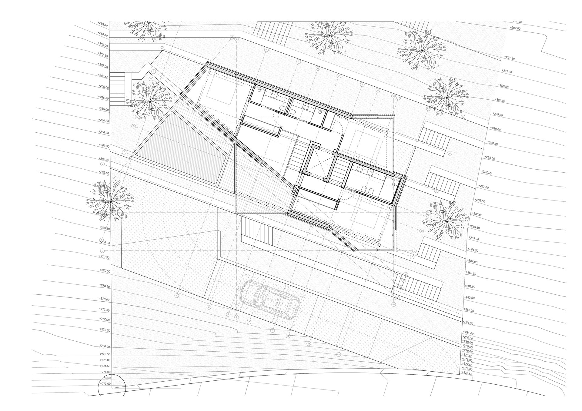
Villa Riley in Alella is a single‑family house set on a steep plot facing the sea and overlooking the entire municipality of Alella. On one hand, the views from the site are exceptional, and on the other, the slope of the plot creates both challenges and interest in the project and its architectural and construction solution.

For this reason, the project adopts the strategy of stepping down to adapt to the natural slope of the terrain, developing its functional program in half‑levels. This eliminates the need for a central staircase core. Instead, the stair flights are integrated as spatial elements that connect the different levels, generating a functional route that links the various living activities.

At the construction level, the project highlights the strategic use of exposed concrete elements combined with a double‑skin ventilated façade finished in natural wood. This solution ensures optimal bioclimatic performance of the building through the combined use of the terrain’s thermal inertia and the double skin with solar protection on the exposed areas of the façade.

Thus, the guiding criteria of the project have been, on the one hand, the topographic integration of the building and respect for the site, and on the other, the highest sustainability requirements, based on reducing energy demand and ensuring the physical and psychological well‑being of the occupants.

Ferusic Architects, Relja Ferusic, Villa Riley Alella
Ferusic Architects, Relja Ferusic, Villa Riley Alella
Ferusic Architects, Relja Ferusic, Villa Riley Alella
Ferusic Architects, Relja Ferusic, Villa Riley Alella
Ferusic Architects, Relja Ferusic, Villa Riley Alella
Ferusic Architects, Relja Ferusic, Villa Riley Alella
Ferusic Architects, Relja Ferusic, Villa Riley Alella
Ferusic Architects, Relja Ferusic, Villa Riley Alella
Ferusic Architects, Relja Ferusic, Villa Riley Alella
Ferusic Architects, Relja Ferusic, Villa Riley Alella
Ferusic Architects, Relja Ferusic, Villa Riley Alella
Ferusic Architects, Relja Ferusic, Villa Riley Alella
Ferusic Architects, Relja Ferusic, Villa Riley Alella
Ferusic Architects, Relja Ferusic, Villa Riley Alella
Ferusic Architects, Relja Ferusic, Villa Riley Alella
Ferusic Architects, Relja Ferusic, Villa Riley Alella
Ferusic Architects, Relja Ferusic, Villa Riley Alella
Ferusic Architects, Relja Ferusic, Villa Riley Alella
Ferusic Architects, Relja Ferusic, Villa Riley Alella
Ferusic Architects, Relja Ferusic, Villa Riley Alella
Ferusic Architects, Relja Ferusic, Villa Riley Alella
Ferusic Architects, Relja Ferusic, Villa Riley Alella
Ferusic Architects, Relja Ferusic, Villa Riley Alella
Ferusic Architects, Relja Ferusic, Villa Riley Alella
Ferusic Architects, Relja Ferusic, Villa Riley Alella
Ferusic Architects, Relja Ferusic, Villa Riley Alella

Data:

Construction year: Under construction

Built Surface area: 345 m2

Team:

Architects: Relja Ferusic Manusev and Carles Sala Roig

Structural engineering: MOST Enginyers (Dusko Hadzijanev y Josep Farré Checa)

MEP engineering: ESTUDIENTAC (Joan Josep Navarro)

Civil engineer: Miquel Collado

General contractor: Cavisa

Relja Ferusic

Relja Ferusic is a registered architect at COAC, AABiH and REG Switzerland. He graduated with Honours from the ETSAB (Universitat Politècnica de Catalunya) in Barcelona, where he later obtained an MSc on urban space and digital social networks.

In 2005 he founded a studio FERUSIC ARCHITECTS in Barcelona, a framework in which he currently develops his professional career, focused on architectural design, urban planning. Relja Ferusic also co-founded SALA FERUSIC Architects, a partnership association under which he developed most of his last projects and works.

In terms of research, he is currently directing BODEGA Research Group, which pursues the design and fabrication of solutions for winemaking in future scenarios, under the scope of the AA School of Architecture in London and IAAC in Barcelona. His investigation work has been acknowledged by COAC with the Architectural Innovation Award and awarded with a research grant by ‘Banc Sabadell’ Foundation.

He has taught Architectural Design at D-Arch (ETH) in Zurich, ESARQ (UIC) in Barcelona, WSA Cardiff, and ran a seminar at the Master in Advanced Architecture at IAAC in Barcelona.

Since 2015 Relja Ferusic holds a position of Associate Lecturer in Architectural Design at the ETSAB in Barcelona where he teaches at First Year and leads a Laboratory for Computational Architecture (LAC) at Fifth Year.

https://www.ferusic.com
Anterior
Anterior

Ingravitis Mas Rodó Winery

Siguiente
Siguiente

Bodega de Bardos Winery